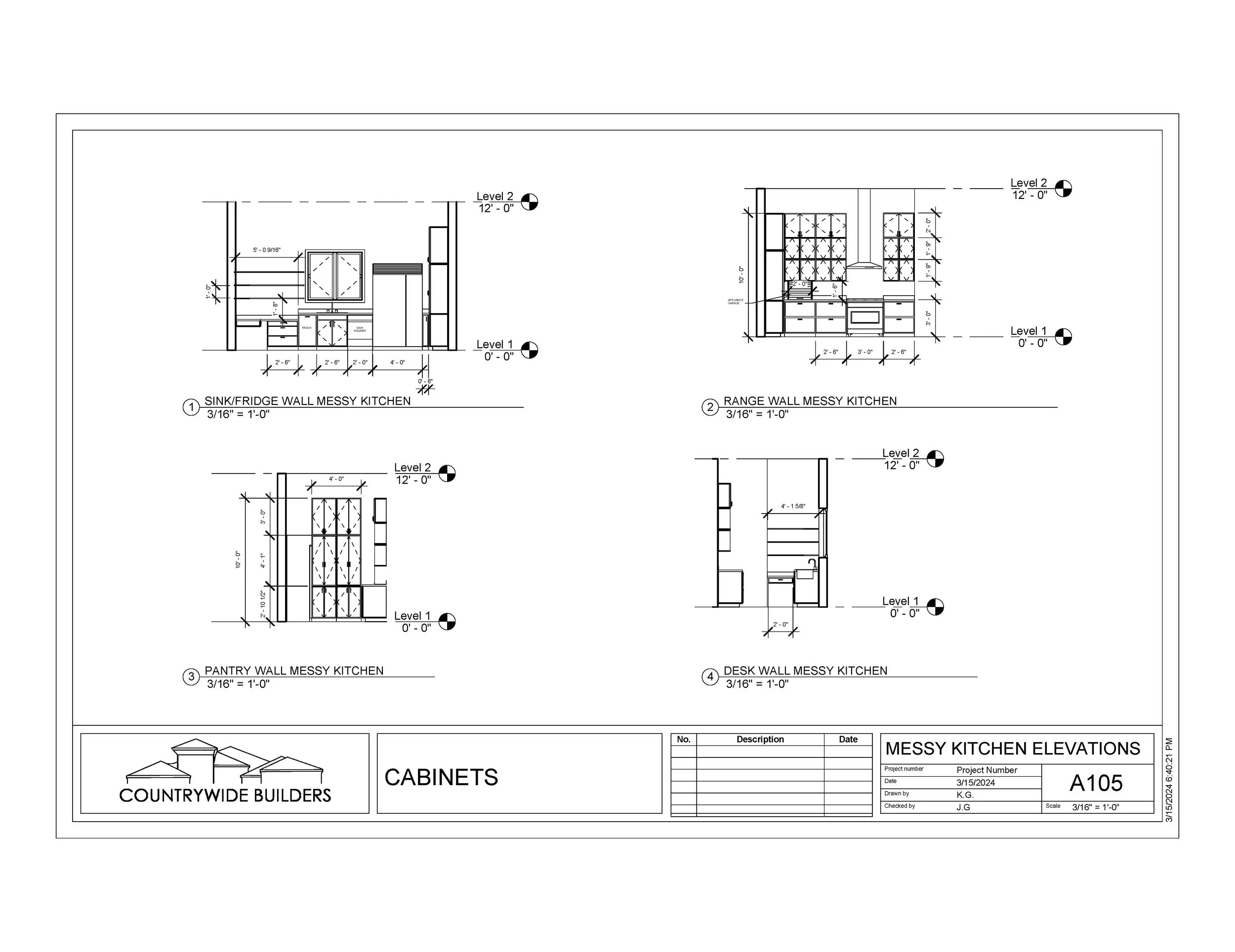
Cabinet Design- Naples, FL
Objective:
To create and assist in the design/creation of all cabinet drawings for a Naples home.
Inspiration:
To create a functional and luxurious feel for the client.
Involvement:
Worked closely with the clients and Countrywide Builders. Collaborated on what layouts and cabinets would work best for the client. Created all drawings in Revit. Assisted in creating the exterior rendering as well.
Software used: Revit & Lumion
To be completed in Fall 2025










